5. Расчётно-графическая работа 2


Министерство образования и науки Республики Казахстан

Павлодарский государственный университет им. С. Торайгырова

 Факультет архитектурно-строительный

 Кафедра архитектуры и дизайна

РАСЧЁТНО-ГРАФИЧЕСКАЯ РАБОТА

РГР.5В042000. 49- 23. 09. 15. ПЗ

По дисциплине Архитектурная физика
Тема Теплотехнический и светотехнический расчеты жилого дома в городе Новосибирск

____________

     (оценка)

 

Члены комиссии

 ________________

(должность, ученая степень)

 ________________

(инициалы, фамилия)

 

_______________   ______________      

(подпись)                           (дата)

 

Нормоконтролер

________________

(должность, ученая степень)

 

 ________________

(инициалы, фамилия)

 

_______________   _____________     

(подпись)                             (дата)

 

 

 

 

Руководитель

 ________________

(должность, ученая степень)

 ________________

(инициалы, фамилия)

_______________     _____________  

(подпись)                           (дата)

 

 

Студент

________________

(инициалы, фамилия)

 

________________     ____________

(подпись)                             (дата)

 ____________

(группа)

 

 


Содержание

Введение

1. Город Новосибирск

2. Планы и разрезы здания

3. Теплотехнический расчёт

4. Светотехнический расчёт

Заключение

Список используемых источников


Введение

С каждым днем все больше и больше людей задается вопросом как же правильно и рационально решить проблему энергосбережения и экономии топлива. В течение последней декады придумали много идей, которые могут позволить создать уютный микроклимат в помещении, и в тоже время снизить расходы на отопление и охлаждение. Если взять, к примеру, старые советские здания то там потерия тепла составляет 40 %. Соответственно необходимо потратить деньги на утепление дома. Если взять средний показатель, который тратится на отопление, то это будет около 60% от всей энергии. Тепло уходит из дома через наружные стены, пол, кровлю, окна и двери. 15-20 м3 газа на 1 метр квадратный площади требуется на отопления дома, который построен без утепления. А те дома которые были утеплены, при постройке тратят всего лишь 6–12 м3 на 1 квадратный метр. В следствие этого люди зачастую утепляют свои дома дополнительно, и благодаря этому снижает расходы на отопление на 50 % и больше.

Если мы обратимся за помощью к современным методам утепления, то найдем большое количество примуществ: 1. Обеспечивают нормальную температуру в помещении в течении года. 2. Стены защищены от избыточной влажности и конденсации. И благодоря этому на стенах не появится грибок и плесень. 3. Значительное снижение уровня шума в здании. Поглощается до 95% звуковых колебаний. 5. Улучшается гигиеническое состояние помещения. 6. Снижает энергопотребление. 7. Снижает выброс вредных веществ в атмосферу. 8. Повышается срок службы здания. 9.  Уменьшается стоимость строительства. Следует отметить, что полностью исключить теплопотери невозможно, но их можно свести до минимума.

Хорошие и качественные работы по утеплению дома смогут помочь жилищу сохранять приемлемую температуру и помогут сократить затраты на отопление. Самая главная задача работ по утеплению дома это создать комфортную температуру и минимизировать потерий тепла. Зимой теплый воздух нужно сохронять внутри, а летом наобарот нужно, чтоб теплый воздух не проникал внутрь. Если работы по утеплению дома будут выполнены качественно, то они помогут вам решить вопрос минимизациипотерь тепла дома.

Это очень важно для тех, кто проживает в частном доме, так как надо утеплять каждый уголок в доме. Но к сожелению много людей не имеют необходимых знаний о теплоизоляционных материалов, и вследствие этого, строители могут использовать не самые лучшие материалы для теплоизоляции. Провести косплексное утепление помещений помогут эконат, пенополеуретан, пеноизол. При помощи эконаты, пенополеуретана и пеноизола можно пол и стены дома.

1. Город Новосибирск

Новосиби́рск – третий по численности населения и тринадцатый по занимаемой площади город России, имеет статус городского округа. Административный центр Сибирского федерального округа, Новосибирской области и входящего в её состав Новосибирского района. Город является центром Новосибирской агломерации – крупнейшей в Сибири. Торговый, деловой, культурный, промышленный, транспортный и научный центр федерального значения. Основан в 1893 году, статус города получил в 1903 году. Численность населения – 1 567 087 чел. (2015). Город расположен рядом с водохранилищем, образованным плотиной Новосибирской ГЭС. Городская территория занимает площадь, равную 505,62 км² (50 562 га) 

Основание города

Согласно данным энциклопедического словаря Брокгауза и Ефрона, к 1893 году в Кривощёковской слободе проживало 685 жителей, здесь работала начальная школа, а также имелась пристань для пароходов. Когда стало ясно, что Кривощёково будет уничтожено, потому что по нему проляжет Великий Сибирский Путь (первое название Транссиба), кривощёковцы стали расселяться по близлежащим деревням, а некоторые перебрались на правый берег. Это место называлось «Чёртово городище» и пользовалось дурной славой, потому что рядом с устьем речки Каменки находилась деревня Мочигу, в которой жили аборигены. Они охраняли останки древней телеутской крепости, некогда возвышавшейся над местностью. И тем не менее, кривощёковцы закрепились на новом месте. Их деревня получила название Кривощёковский Выселок. Позднее окажется, что это поселение откроет новую страницу истории правобережья, потому что 30 апреля 1893 год сюда прибудет первая партия рабочих для строительства вахтового посёлка, в котором должны будут жить мостостроители. (Этот момент принято считать официальной датой рождения Новосибирска).

К северу начнёт возводиться железнодорожная станция «Обь» и посёлок при ней43]. Вскоре оба поселения соединятся.

Часовой пояс

До 1958 года Левобережье (тогда Заобский район, позже Кировский) и Правобережье находились в разных часовых поясах. До начала 1990-х Новосибирская область находилась в седьмом часовом поясе, что приводило к интересному эффекту: время полёта из аэропорта Толмачёво до Москвы составляло 4 часа, поэтому взлёт и посадка происходили в одно и то же местное время.

C 23 мая 1993 года Новосибирская область находилась в шестом часовом поясе UTC+6, (MSK+3), определяемом как «Omsk Time Zone (OMST)»

После перевода 27 марта 2011 года всех часовых поясов России на 1 час вперёд, Новосибирск располагался в часовом поясе, опережающем UTC на 7 часов (UTC+7) и на 3 часа Московское время (MSK+3). С 26 октября 2014 года, с переводом большинства часовых зон России обратно на 1 час назад, город расположен в зоне UTC+6, разница во времени с Москвой не изменилась.

Рельеф

Рельеф Новосибирской области преимущественно равнинный. Часть области, расположенную слева от Оби, занимает низменная равнина (120 м над уровнем моря) с гривообразными повышениями рельефа высотой 3-10 м. Правый берег Оби более возвышенный, холмистый. На востоке области расположен Салаирский кряж с самой высокой точкой области (510 м над уровнем моря).

Новосибирская область богата такими полезными ископаемыми, как каменный уголь, тугоплавкие глины, торф, высококачественные антрациты, руды цветных металлов (диоксид титана и диоксид циркония).

По территории Новосибирской области протекает река Обь, протяжённость которой в пределах области составляет около 400 км, то есть 11% от общей длины, а водосборная площадь бассейна в пределах области составляет 110 тысяч км², то есть 3,68% от общей водосборной площади бассейна.

Географическое положение

Новосибирск расположен в юго-восточной части Западно-Сибирской равнины, на пересечении лесной и лесостепной природных зон. Левобережная часть города имеет плоский рельеф, правобережная характеризуется множеством балок, грив и оврагов, поскольку здесь начинается переход к горному рельефу Салаирского кряжа. К городу примыкают Заельцовский и Кудряшовский боры, Новосибирское водохранилище.

Климатическая зона

Новосибирск находится в континентальной климатической зоне; среднегодовая температура воздуха +1,8 °C. Для города характерны большие колебания среднемесячных (38 °C) и абсолютных (88 °C) температур воздуха. Средняя температура воздуха в январе −16 °C, в июле +19 °C. Самая низкая температура зафиксирована в январе 1915 года (−51,1 °C), самая высокая – 7 июня 1967 года (+36,6 °C). Город расположен на границе лесостепной и лесной природных зон. Среднее годовое количество часов солнечного сияния – 2077.

Климат Новосибирска (1981—2010 гг.)

Показатель

Янв.

Фев.

Март

Апр.

Май

Июнь

Июль

Авг.

Сен.

Окт.

Нояб.

Дек.

Год

Абсолютный максимум, °C

4,1

5,1

14,4

30,7

36,1

36,6

35,9

35,7

33,2

27,2

11,5

4,8

36,6

Средний максимум, °C

−12,1

−9,7

−1,9

8,1

18,8

23,4

25,4

22,8

16

7,6

−3,5

−9,9

7,1

Средняя температура, °C

−16,5

−14,8

−7,6

2,3

11,8

17,1

19,4

16,6

10,2

3,1

−6,9

−14

1,7

Средний минимум, °C

−20,9

−19,5

−12,8

−2,4

5,6

11,2

13,8

11,2

5,6

−0,4

−10,3

−18,3

−3,1

Абсолютный минимум, °C

−46,2

−46,3

−36,4

−29,1

−8,6

−2,2

1,5

0

−6,9

−26,4

−40

−45,7

−46,3

Норма осадков, мм

25

18

17

27

34

55

66

60

43

45

37

33

460

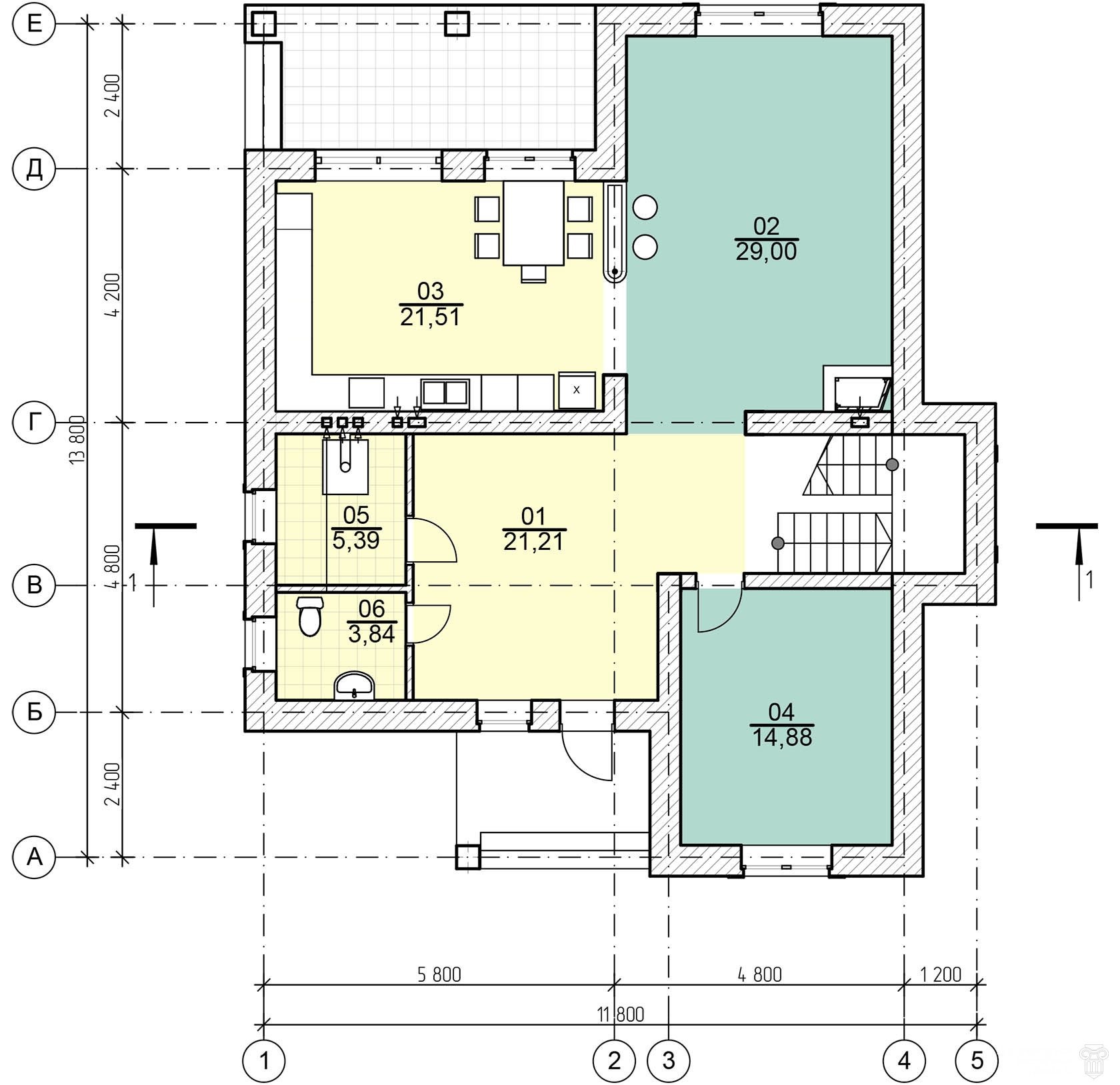
Планы и разрез здания

1-й этаж

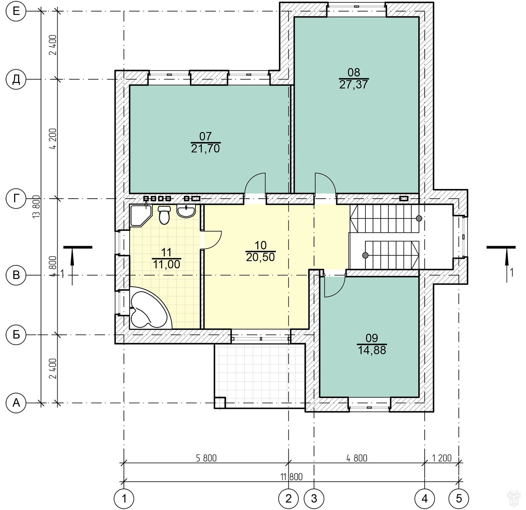
2-й этаж

Разрез

 Основные климатические параметры

Температура холодной пятидневки с обеспеченностью 0.92

-37

˚С

Продолжительность отопительного периода

221

суток

Средняя температура воздуха отопительного периода

-8.1

˚С

Относительная влажность воздуха наиболее холодного месяца

79

%

Условия эксплуатации помещения

А

Количество градусо-суток отопительного периода (ГСОП)

6210

°С•сут

Теплотехнический расчет

Теплотехнический расчет производится при помощи онлайн-программы   www.smartcalc.ru

Исходные данные: Жилой дом в городе Новосибирск.

Средние месячные и годовые значения температуры и парциального давления водяного пара

Месяц

Т, ˚С

E, гПа

Месяц

Т, ˚С

E, гПа

Январь

-17.3

1.4

Июль

19.4

15.6

Февраль

-15.7

1.5

Август

16.2

13.4

Март

-8.4

2.6

Сентябрь

10.2

9.2

Апрель

2.2

5

Октябрь

2.5

5.5

Май

11.1

7.3

Ноябрь

-7.4

3

Июнь

17

12.3

Декабрь

-14.5

1.8

Год

1.3

6.5

Тепловая защита. Сопротивление теплопередаче: 4.07 (м²•˚С)/Вт

Слои конструкции (изнутри наружу)

Тип

Толщина

Материал

λ

R

Тmax

Тmin

  Сопротивление тепловосприятию

0.11

20.0

19.1

1

20

  Гипсоперлитовый раствор

0.19

0.11

19.1

18.4

2

420

  Газобетон, газосиликат автоклавный D400

0.113

3.72

18.4

-9.4

3

10

  Цементно-перлитовый раствор 1000 кг/м³

0.26

0.04

-9.4

-9.7

  Сопротивление теплоотдаче

0.04

-10.0

-10.0

4

25

  Вентилируемая воздушная прослойка

0

0.00

-9.7

-10.0

5

25

  Отделка на относе

0

0.00

-10.0

-10.0

Термическое сопротивление ограждающей конструкции

3.86

Сопротивление теплопередаче ограждающей конструкции [R]

4.07

Требуемое сопротивление теплопередаче

Санитарно-гигиенические требования [Rс]

1.64

Нормируемое значение поэлементных требований [Rэ]

2.25

Базовое значение поэлементных требований [Rт]

3.57

Расчет защиты от переувлажнения методом безразмерных величин

Нахождение плоскости максимального увлажнения. Влагонакопление.

Координата плоскости максимального увлажнения

X

304.84

мм

Сопротивление паропроницанию от внутренней поверхности конструкции до плоскости максимального увлажнения

Rп(в)

1.36

(м²•ч•Па)/мг

Сопротивление паропроницанию от плоскости максимального увлажнения до внешней поверхности конструкции

Rп(н)

0.65

(м²•ч•Па)/мг

Условие недопустимости накопления влаги в ограждающей конструкции за годовой период эксплуатации

Rп.тр(1)

0.15

(м²•ч•Па)/мг

Условие ограничения влаги в ограждающей конструкции за период с отрицательными среднемесячными температурами наружного воздуха

Rп.тр(2)

0.24

(м²•ч•Па)/мг

Послойный расчет защиты от переувлажнения

Слои конструкции (изнутри наружу)

Толщина

Материал

μ

Rп

X

Rп(в)

Rп.тр(1)

Rп.тр(2)

1

20

Гипсоперлитовый раствор

0.17

0.12

20(233.8)

0.12

-1.12

-0.76

2

420

Газобетон, газосиликат автоклавный D400

0.23

1.83

276.4

1.32

0.13

0.23

3

10

Цементно-перлитовый раствор 1000 кг/м³

0.15

0.07

-883.9

0.00

0.00

0.00

4

25

Вентилируемая воздушная прослойка

0

0.00

0.0

0.00

0.00

0.00

5

25

Отделка на относе

0

10.00

0.0

0.00

0.00

0.00

Гипсоперлитовый раствор

Толщина слоя

d

20

мм

Координата плоскости возможной конденсации

Хi

233.8

мм

Сопротивление паропроницанию от внутренней поверхности конструкции до плоскости возможной конденсации

Rп(в)

0.12

(м²•ч•Па)/мг

Сопротивление паропроницанию от плоскости возможной конденсации до внешней поверхности конструкции

Rп(н)

1.89

(м²•ч•Па)/мг

Требуемое сопротивление паропроницанию из условия недопустимости накопления влаги в ограждающей конструкции за годовой период эксплуатации

Rп.тр(1)

-1.12

(м²•ч•Па)/мг

Требуемое сопротивление паропроницанию из условия ограничения влаги в ограждающей конструкции за период с отрицательными среднемесячными температурами наружного воздуха

Rп.тр(2)

-0.76

(м²•ч•Па)/мг

Тепловые потери через квадратный метр ограждающей конструкции

Потери тепла в час при сопротивлении теплопередаче (Вт•ч)

Сопротивление теплопередаче

R

±R, %

Q

±Q, Вт•ч

Санитарно-гигиенические требования [Rс]

1.64

-59.74

17.16

10.25

Нормируемое значение поэлементных требований [Rэ]

2.25

-44.66

12.48

5.57

Базовое значение поэлементных требований [Rт]

3.57

-12.16

7.86

0.96

Сопротивление теплопередаче ограждающей конструкции [R]

4.07

0.00

6.91

0.00

R + 10 %

4.47

10.00

6.28

-0.63

R + 25 %

5.09

25.00

5.53

-1.38

R + 50 %

6.10

50.00

4.60

-2.30

R + 100 %

8.14

100.00

3.45

-3.45

Потери тепла за отопительный сезон: 36.64 кВт•ч

Газобетон, газосиликат автоклавный D-400 основной материал, использованный при возведении здания.

Ячеистый газобетон(газоселикат), пенобетон служит для изготовления мелких стеновых блоков и крупноразмерных изделий для применения в конструкциях наружных и внутренних стен. Ячеистый бетон изготавливают на основе извести, цемента, кварцевого песка, золы, шлаков и других отходов производства.

Светотехнический расчет

Светотехника – областьнаукиитехники, предметом которой являются исследование принципов и разработка способов генерирования, пространственного перераспределения и измерения характеристик оптического излучения, а также преобразование его энергии в другие виды энергии и использование в различных целях. Светотехника включает в себя также конструкторскую и технологическую разработку источников излучения и систем управления ими, осветительных, облучательных и светосигнальных приборов, устройств и установок, нормирование, проектирование, монтаж и эксплуатацию светотехнических установок.

— Ю. Б. Айзенберг, «Справочная книга по светотехнике»

В современное времясветотехника – это наука о свойствахсвета, возможностях и принципов его использования, а также о новых альтернативных источниках получения света.Светотехникакак наука плотно связана сэнергетикой,электроникой,оптикой,архитектурой. Наиболее востребованные и популярные направления светотехники – изучение и разработка световых приборов на основесветодиодов,световой дизайн.

Измерение световых величин

Существуют два метода световых измерений: субъективный (зрительный), при котором приёмником служит человеческий орган зрения (глаз), и объективный (физический), где для световых измерений используются физические приёмники —фотоэлементы, фотоумножители, фотографические материалы и др.

В настоящее время субъективные измерения проводятся значительно реже, чем объективные. Субъективным методом пользуются при градуировке физических приёмников, измерениях на линейном фотометре (светотехнической скамье), измеренияхцветовой температуры.

Измерение яркости проводят тем и другим методом. Для измерения освещённости, светового потока, снятия продольных кривых сил света, измерения энергетических величин используются физические приёмники потока излучения. В основе субъективного метода световых измерений лежит способность глаза устанавливать равенство яркостей двух соприкасающихся поверхностей.

При использовании физических приёмников излучения для световых измерений приходится исправлять (корригировать) их спектральные чувствительности под спектральную чувствительность светоадаптированного глаза.

Расчет освещения по программе - Калькулятор освещенности по сайту: http://ltcompany.com/ru/solutions/illumination-calculator

Простейшая, бесплатная программа, позволяющая рассчитать освещенность от светильников с лампами накаливания и с люминесцентными лампами, в стандартных внутренних помещениях, по нормам освещенности согласно СНиП 23-05-95 «Естественное и искусственное освещение». Освещенность – физическая величина, численно равная световому потоку, падающему на единицу поверхности. Единицей измерения освещённости в системе СИ служит люкс (1 люкс = 1 люмену на квадратный метр), в СГС – фот (один фот равен 10 000 люксов). В отличие от освещённости, выражение количества света, отражённого поверхностью, называется яркостью. Освещенность прямо пропорциональна силе света источника света.

1-й этаж

1-й этаж

1. Прихожая

Исходные данные:

Площадь помещения – 14,88 кв.м

Высота свеса светильника - 2,7 м

отащения - Коридоры

Коэффициент запаса —1,4

Освещённость запаса - 50 Лк

Тип светильника - НПБ01-75

Результат расчёта:

Необходимо установить 18 светильника(ов).

2. Гостиная

Исходные данные:

Площадь помещения – 29 кв.м

Высота свеса светильника - 2,7 м

Тип помещения – Жилые помещения

Коэффициент запаса —1,4

Освещённость запаса - 150 Лк

Тип светильника - НПБ01-75

Результат расчёта:

Необходимо установить 25 светильника(ов).

3. Кухня

Исходные данные:

Площадь помещения – 21,51 кв.м

Высота свеса светильника - 2,7 м

Тип помещения - Кухня

Коэффициент запаса —1,4

Освещённость запаса - 150 Лк

Тип светильника - НПБ01-75

Результат расчёта:

Необходимо установить 19 светильника(ов)

4. Кабинет

Исходные данные:

Площадь помещения – 14,88 кв.м

Высота свеса светильника - 2,7 м

Тип помещения - Коридоры

Коэффициент запаса —1,4

Освещённость запаса - 50 Лк

Тип светильника - НПБ01-75

Результат расчёта:

Необходимо установить 8 светильника(ов).

5. Ванна

Исходные данные:

Площадь помещения – 5,39 кв.м

Высота свеса светильника - 2,7 м

Тип помещения - Ванны

Коэффициент запаса —1,4

Освещённость запаса - 50 Лк

Тип светильника - НПБ01-75

Результат расчёта:

Необходимо установить 4 светильника(ов).

6. Санузел

Исходные данные:

Площадь помещения – 3,84 кв.м

Высота свеса светильника - 2,7 м

Тип помещения – Сан узлы

Коэффициент запаса —1,4

Освещённость запаса - 50 Лк

Тип светильника - НПБ01-75

Результат расчёта:

Необходимо установить 3 светильника(ов).

2-й этаж

7. Спальня

Исходные данные:

Площадь помещения – 21.70 кв.м

Высота свеса светильника - 2,7 м

Тип помещения – Жилые помещения

Коэффициент запаса —1,4

Освещённость запаса - 150 Лк

Тип светильника - НПБ01-75

Результат расчёта:

Необходимо установить 21 светильника(ов).

8. Детская

Исходные данные:

Площадь помещения – 27.37 кв.м

Высота свеса светильника - 2,7 м

Тип помещения – Жилые помещения

Коэффициент запаса —1,4

Освещённость запаса - 200 Лк

Тип светильника - НПБ01-75

Результат расчёта:

Необходимо установить 25 светильника(ов).

9. Кабинет 2

Исходные данные:

Площадь помещения – 14,88 кв.м

Высота свеса светильника - 2,7 м

Тип помещения – Жилые помещения

Коэффициент запаса —1,4

Освещённость запаса - 50 Лк

Тип светильника - НПБ01-75

Результат расчёта:

Необходимо установить 6 светильника(ов).

10. Каридор

Исходные данные:

Площадь помещения – 20,50 кв.м

Высота свеса светильника - 2,7 м

Тип помещения - Коридоры

Коэффициент запаса —1,4

Освещённость запаса - 50 Лк

Тип светильника - НПБ01-75

Результат расчёта:

Необходимо установить 19 светильника(ов).

11. Совмещенные санузел

Исходные данные:

Площадь помещения – 11 кв.м

Высота свеса светильника - 2,7 м

Тип помещения - Санузел

Коэффициент запаса —1,4

Освещённость запаса - 50 Лк

Тип светильника - НПБ01-75

Результат расчёта:

Необходимо установить 11 светильника(ов).

Расчёт естественного освещения

1 этаж.

Исходные данные. Комната: Прихожая. Глубина помещения d п = 4.8 м, ширина помещения b п = 4.4 м, площадь пола помещения А п = 21.21 м2, толщина наружной стены 0,6 м, высота подоконника h 0 = 0,9 м, высота светового проема окна h 0 = 1,5 м; переплеты спаренные деревянные с двумя слоями остекления; средневзвешенный коэффициент отражения поверхностей помещения r ср = 0,5, коэффициент запаса К з = 1,2; здание располагается в первой группе административных районов по ресурсам светового климата.

Решение

1 По приложению И СНиП 23-05 определяют нормированное значение КЕО е н, равное

0,5 %.

2 Выполняют предварительный расчет естественного освещения: по глубине помещения d п = 4.8 м и высоте верхней грани светового проема над условной рабочей поверхностью h 01 = 1,5 м определяют, что

d п / h 01 = 3.2

3 Соответствующей кривой е = 0,5 % находят точку с абсциссой 4,0; по ординате этой точки определяют, что необходимая относительная площадь светового проема А с.о /Ап составляет 19 %.

4 Площадь светового проема определяют по формуле

А с.о = 0,19 ´ Ап = 0,19 * 21.21 = 4.02 м2.

Следовательно, ширина светового проема при высоте 1,5 м должна составлять

b с. п =  4.02/1,5 = 1.56 м.

Принимают оконный блок размером 1,5 х 2,7 м.

Исходные данные. Комната: Гостиная. Глубина помещения d п = 6.6 м, ширина помещения b п = 4.8 м, площадь пола помещения А п = 29 м2, толщина наружной стены 0,6 м, высота подоконника h 0 = 0,9 м, высота светового проема окна h 0 = 1,5 м; переплеты спаренные деревянные с двумя слоями остекления; средневзвешенный коэффициент отражения поверхностей помещения r ср = 0,5, коэффициент запаса К з = 1,2; здание располагается в первой группе административных районов по ресурсам светового климата.

Решение

1 По приложению И СНиП 23-05 определяют нормированное значение КЕО е н, равное

0,5 %.

2 Выполняют предварительный расчет естественного освещения: по глубине помещения d п = 6.6 м и высоте верхней грани светового проема над условной рабочей поверхностью h 01 = 1,5 м определяют, что

d п / h 01 = 4.4

3 Соответствующей кривой е = 0,5 % находят точку с абсциссой 4,0; по ординате этой точки определяют, что необходимая относительная площадь светового проема А с.о /Ап составляет 19 %.

4 Площадь светового проема определяют по формуле

А с.о = 0,19 * Ап = 0,19 * 29 = 5.51 м2.

Следовательно, ширина светового проема при высоте 1,5 м должна составлять

 b с. п =  5.51/1,5 = 3.67 м.

Принимают оконный блок размером 1,5 х 2,7 м.

Исходные данные. Комната: Кухня. Глубина помещения d п = 4.2 м, ширина помещения b п = 5.8 м, площадь пола помещения А п = 21.51 м2, толщина наружной стены 0,6 м, высота подоконника h 0 = 0,9 м, высота светового проема окна h 0 = 1,5 м; переплеты спаренные деревянные с двумя слоями остекления; средневзвешенный коэффициент отражения поверхностей помещения r ср = 0,5, коэффициент запаса К з = 1,2; здание располагается в первой группе административных районов по ресурсам светового климата.

Решение

1 По приложению И СНиП 23-05 определяют нормированное значение КЕО е н, равное  0,5 %.

2 Выполняют предварительный расчет естественного освещения: по глубине помещения d п = 4.2 м и высоте верхней грани светового проема над условной рабочей поверхностью h 01 = 1,5 м определяют, что

d п / h 01 = 2.8

3 Соответствующей кривой е = 0,5 % находят точку с абсциссой 4,0; по ординате этой точки определяют, что необходимая относительная площадь светового проема А с.о /Ап составляет 19 %.

4 Площадь светового проема определяют по формуле

А с.о = 0,19 * Ап = 0,19 * 21.51 = 4.08 м2.

Следовательно, ширина светового проема при высоте 1,5 м должна составлять

b с. п =  4.08/1,5 = 2.72 м.

Принимают оконный блок размером 1,5 х 2,7 м.

Исходные данные. Комната: Кабинет. Глубина помещения d п = 4.8 м, ширина помещения b п = 4.8 м, площадь пола помещения А п = 14.88 м2, толщина наружной стены 0,6 м, высота подоконника h 0 = 0,9 м, высота светового проема окна h 0 = 1,5 м; переплеты спаренные деревянные с двумя слоями остекления; средневзвешенный коэффициент отражения поверхностей помещения r ср = 0,5, коэффициент запаса К з = 1,2; здание располагается в первой группе административных районов по ресурсам светового климата.

Решение

1 По приложению И СНиП 23-05 определяют нормированное значение КЕО е н, равное 0,5 %.

2 Выполняют предварительный расчет естественного освещения: по глубине помещения d п = 4.8 м и высоте верхней грани светового проема над условной рабочей поверхностью h 01 = 1,5 м определяют, что d п / h 01 = 3.2

3 Соответствующей кривой е = 0,5 % находят точку с абсциссой 4,0; по ординате этой точки определяют, что необходимая относительная площадь светового проема А с.о /Ап составляет 19 %.

4 Площадь светового проема определяют по формуле

А с.о = 0,19 * Ап = 0,19 * 14.88 = 2.82 м2.

Следовательно, ширина светового проема при высоте 1,5 м должна составлять

b с. п =  2.82/1,5 = 1.88 м.

Принимают оконный блок размером 1,5 х 2,7 м.

Исходные данные. Комната: Ванна. Глубина помещения d п = 2.4 м, ширина помещения b п = 2 м, площадь пола помещения А п = 5.39 м2, толщина наружной стены 0,6 м, высота подоконника h 0 = 1.5 м, высота светового проема окна h 0 = 0.6 м; переплеты спаренные деревянные с двумя слоями остекления; средневзвешенный коэффициент отражения поверхностей помещения r ср = 0,5, коэффициент запаса К з = 1,2; здание располагается в первой группе административных районов по ресурсам светового климата.

Решение

1 По приложению И СНиП 23-05 определяют нормированное значение КЕО е н, равное 0,5 %.

2 Выполняют предварительный расчет естественного освещения: по глубине помещения d п = 2.4 м и высоте верхней грани светового проема над условной рабочей поверхностью h 01 = 0.6 м определяют, что d п / h 01 = 4

3 Соответствующей кривой е = 0,5 % находят точку с абсциссой 4,0; по ординате этой точки определяют, что необходимая относительная площадь светового проема А с.о /Ап составляет 19 %.

4 Площадь светового проема определяют по формуле

А с.о = 0,19 * Ап = 0,19 * 5.39 = 1.02 м2.

Следовательно, ширина светового проема при высоте 1,5 м должна составлять b с. п =  1.02/0.6 = 2 м. Принимают оконный блок размером 0.6 х 0.6 м.

Исходные данные. Комната: Санузел. Глубина помещения d п = 1.6 м, ширина помещения b п = 2 м, площадь пола помещения А п = 3.84 м2, толщина наружной стены 0,6 м, высота подоконника h 0 = 1.5 м, высота светового проема окна h 0 = 0.6 м; переплеты спаренные деревянные с двумя слоями остекления; средневзвешенный коэффициент отражения поверхностей помещения r ср = 0,5, коэффициент запаса К з = 1,2; здание располагается в первой группе административных районов по ресурсам светового климата.

Решение

1 По приложению И СНиП 23-05 определяют нормированное значение КЕО е н, равное 0,5 %.

2 Выполняют предварительный расчет естественного освещения: по глубине помещения d п = 1.6 м и высоте верхней грани светового проема над условной рабочей поверхностью h 01 = 0.6 м определяют, что d п / h 01 = 2.6

3 Соответствующей кривой е = 0,5 % находят точку с абсциссой 4,0; по ординате этой точки определяют, что необходимая относительная площадь светового проема А с.о /Ап составляет 19 %.

4 Площадь светового проема определяют по формуле

А с.о = 0,19 * Ап = 0,19 * 3.84= 0.72 м2.

Следовательно, ширина светового проема при высоте 1,5 м должна составлять

 b с. п =  0.72/0.6 = 1.2 м.

 Принимают оконный блок размером 0.6 х 0.6 м.

2 этаж.

Исходные данные. Комната: Спальня. Глубина помещения d п = 4.2 м, ширина помещения b п = 5.8 м, площадь пола помещения А п = 21.70 м2, толщина наружной стены 0,6 м, высота подоконника h 0 = 0,9 м, высота светового проема окна h 0 = 1,5 м; переплеты спаренные деревянные с двумя слоями остекления; средневзвешенный коэффициент отражения поверхностей помещения r ср = 0,5, коэффициент запаса К з = 1,2; здание располагается в первой группе административных районов по ресурсам светового климата.

Решение

1 По приложению И СНиП 23-05 определяют нормированное значение КЕО е н, равное 0,5 %.

2 Выполняют предварительный расчет естественного освещения: по глубине помещения d п = 4.2 м и высоте верхней грани светового проема над условной рабочей поверхностью h 01 = 1,5 м определяют, что d п / h 01 = 2.8

3 Соответствующей кривой е = 0,5 % находят точку с абсциссой 4,0; по ординате этой точки определяют, что необходимая относительная площадь светового проема А с.о /Ап составляет 19 %.

4 Площадь светового проема определяют по формуле

А с.о = 0,19 ´ Ап = 0,19 * 21.70 = 4.12 м2.

Следовательно, ширина светового проема при высоте 1,5 м должна составлять  b с. п =  4.12/1,5 = 2.74 м.

Принимают оконный блок размером 1,5 х 2,7 м.

Исходные данные. Комната: Детская. Глубина помещения d п = 6.6 м, ширина помещения b п = 5.2 м, площадь пола помещения А п = 27.37 м2, толщина наружной стены 0,6 м, высота подоконника h 0 = 0,9 м, высота светового проема окна h 0 = 1,5 м; переплеты спаренные деревянные с двумя слоями остекления; средневзвешенный коэффициент отражения поверхностей помещения r ср = 0,5, коэффициент запаса К з = 1,2; здание располагается в первой группе административных районов по ресурсам светового климата.

Решение

1 По приложению И СНиП 23-05 определяют нормированное значение КЕО е н, равное 0,5 %.

2 Выполняют предварительный расчет естественного освещения: по глубине помещения d п = 6.6 м и высоте верхней грани светового проема над условной рабочей поверхностью h 01 = 1,5 м определяют, что d п / h 01 = 4.4

3 Соответствующей кривой е = 0,5 % находят точку с абсциссой 4,0; по ординате этой точки определяют, что необходимая относительная площадь светового проема А с.о /Ап составляет 19 %.

4 Площадь светового проема определяют по формуле

А с.о = 0,19 ´ Ап = 0,19 * 27.37 = 5.20 м2.

Следовательно, ширина светового проема при высоте 1,5 м должна составлять b с. п =  5.20/1,5 = 3.46 м.

Принимают оконный блок размером 1,5 х 2,7 м.

Исходные данные. Комната: Кабинет 2. Глубина помещения d п = 4.8 м, ширина помещения b п = 4.8 м, площадь пола помещения А п = 14.88 м2, толщина наружной стены 0,6 м, высота подоконника h 0 = 0,9 м, высота светового проема окна h 0 = 1,5 м; переплеты спаренные деревянные с двумя слоями остекления; средневзвешенный коэффициент отражения поверхностей помещения r ср = 0,5, коэффициент запаса К з = 1,2; здание располагается в первой группе административных районов по ресурсам светового климата.

Решение

1 По приложению И СНиП 23-05 определяют нормированное значение КЕО е н, равное 0,5 %.

2 Выполняют предварительный расчет естественного освещения: по глубине помещения d п = 4.8 м и высоте верхней грани светового проема над условной рабочей поверхностью h 01 = 1,5 м определяют, что d п / h 01 = 3.2

3 Соответствующей кривой е = 0,5 % находят точку с абсциссой 4,0; по ординате этой точки определяют, что необходимая относительная площадь светового проема А с.о /Ап составляет 19 %.

4 Площадь светового проема определяют по формуле 

А с.о = 0,19 * Ап = 0,19 * 14.88 = 2.82 м2.

Следовательно, ширина светового проема при высоте 1,5 м должна составлять

 b с. п =  2.82/1,5 = 1.88 м.

Принимают оконный блок размером 1,5 х 2,7 м.

Исходные данные. Комната: Коридор. Глубина помещения d п = 4.8 м, ширина помещения b п = 4.3 м, площадь пола помещения А п = 20.50 м2, толщина наружной стены 0,6 м, высота подоконника h 0 = 0,9 м, высота светового проема окна h 0 = 1,5 м; переплеты спаренные деревянные с двумя слоями остекления; средневзвешенный коэффициент отражения поверхностей помещения r ср = 0,5, коэффициент запаса К з = 1,2; здание располагается в первой группе административных районов по ресурсам светового климата.

Решение

1 По приложению И СНиП 23-05 определяют нормированное значение КЕО е н, равное  0,5 %.

2 Выполняют предварительный расчет естественного освещения: по глубине помещения d п = 4.8 м и высоте верхней грани светового проема над условной рабочей поверхностью h 01 = 1,5 м определяют, что d п / h 01 = 3.2

3 Соответствующей кривой е = 0,5 % находят точку с абсциссой 4,0; по ординате этой точки определяют, что необходимая относительная площадь светового проема А с.о /Ап составляет 19 %.

4 Площадь светового проема определяют по формуле

А с.о = 0,19 * Ап = 0,19 * 20.50 = 3.89 м2.

Следовательно, ширина светового проема при высоте 1,5 м должна составлять

b с. п =  3.89/1,5 = 2.59 м.

Принимают оконный блок размером 1,5 х 2,7 м.

Исходные данные. Комната: Совмещенный санузел. Глубина помещения d п = 4.8 м, ширина помещения b п = 2 м, площадь пола помещения А п = 11 м2, толщина наружной стены 0,6 м, высота подоконника h 0 = 1.5 м, высота светового проема окна h 0 = 0.6 м; переплеты спаренные деревянные с двумя слоями остекления; средневзвешенный коэффициент отражения поверхностей помещения r ср = 0,5, коэффициент запаса К з = 1,2; здание располагается в первой группе административных районов по ресурсам светового климата.

Решение

1 По приложению И СНиП 23-05 определяют нормированное значение КЕО е н, равное 0,5 %.

2 Выполняют предварительный расчет естественного освещения: по глубине помещения d п = 4.8 м и высоте верхней грани светового проема над условной рабочей поверхностью h 01 = 0.6 м определяют, что d п / h 01 = 8

3 Соответствующей кривой е = 0,5 % находят точку с абсциссой 4,0; по ординате этой точки определяют, что необходимая относительная площадь светового проема А с.о /Ап составляет 19 %.

4 Площадь светового проема определяют по формуле

А с.о = 0,19 * Ап = 0,19 * 11= 2.09 м2.

Следовательно, ширина светового проема при высоте 1,5 м должна составлять  b с. п =  2.09/0.6 = 3.4 м.

Принимают оконный блок размером 0.6 х 0.6 м


Заключение

Теплотехнический расчет наружных ограждающих конструкций жилого одноэтажного кирпичного дома, который находится в г,Новосибирск, выполнен с помощью сайта http;//www,smartcalc.ru.

Светотехнический расчет жилого дома осуществлен с помощью калькулятора системы освещения. Он включает в себя программу расчета освещенности, экономическую оценку и конфигуратор. Калькулятор расчета освещенности сделан на основе метода коэффициента использования, Метод расчета основан на покупке светильников, затратах на замену источников света и очистку осветительной системы, а также расходах на электроэнергию в течение укатанного периода времени.

Расчет комплектации позволяет составить список требуемых комплектующих для светового прибора, с кодом заказа и их количеством- При светотехнических расчетах в зависимости от назначения установок и нормативных требований к ним должны определяться значения освещенности в характерных точках на горизонтально расположенных поверхностях.

При проектировании естественного освещения зданий следует руководствоваться нормативными требованиями к освещению СНиП 23-05— 95 «Естественное и искусственное освещение» и указаниями СП 23—102— 2003 «Естественное освещение жилых и общественных зданий», а также требованиями санитарно-эпидемиологических правил и норм СанПиН 2,2,1/2,1,1,1278-03 «Гигиенические требования к естественному, искусственному и совмещенному освещению жилых и общественных зданий».


Список использованной литературы

1.Лицкевич В.К., Макриненко М.И. Архитектурная физика.- М.: Стройиздат, 2008

2.Иванова Н.С., Мигалина И.В. Основы архитектурного цветоведения.- М.: МАРХИ, 2001

3.Оболенский Н.В. Архитектура и солнце.- М.: Стройиздат, 2008.

4.Пономарева Е.С. Цвет в интерьере.- Минск.: Высшая школа, 2004

5.Степанов Н.Н. Цвет в интерьере.- Киев: Высшая школа, 2005.

7.Щепетков Н.И. Проектирование архитектурного освещения города.- М.: 1986

Дополнительная:

1.И.В. Мигалкина, Н.И. Щепетков. Расчет и проектирование естественного освещения помещений: Учебное пособие. М. МАРХИ 2013 – 72 с.

2. Щепетков Н.И. Ориентировочный расчет и проектирование искусственного освещения помещений: учебно-методические указания по выполнению расчетно-графической работы – М. МАРХИ, 2013 – 24 с.

3. Климухин А.А., Кисилева Е.Г. Проектирование акустики зрительных залов: учебно-методические указания к курсовой расчетно-графической работе.- М. МАРХИ, 2012. 56 с.

4. Кисилева Е.Г. Мягков М.С. Теплотехнический расчет ограждающих конструкций жилых и общественных зданий: учебно-методические указания к курсовой расчетно-графической работе по архитектурной климатологии. Для студентов, обучающихся по специальности «Архитектура» и «Дизайн архитектурной среды».– М. МАРХИ, 2012- 36 с.

Список используемых источников

https: ru.wikipedia.org wiki/ Новосибирск

https.wikipedia.org/wiki /Климат Новасибирска

https.wikipedia.org/wiki /Рельеф Новасибирска

http://www.smartcalc.ru

http://ltcompany.com/ru/solutions/illumination-calculator